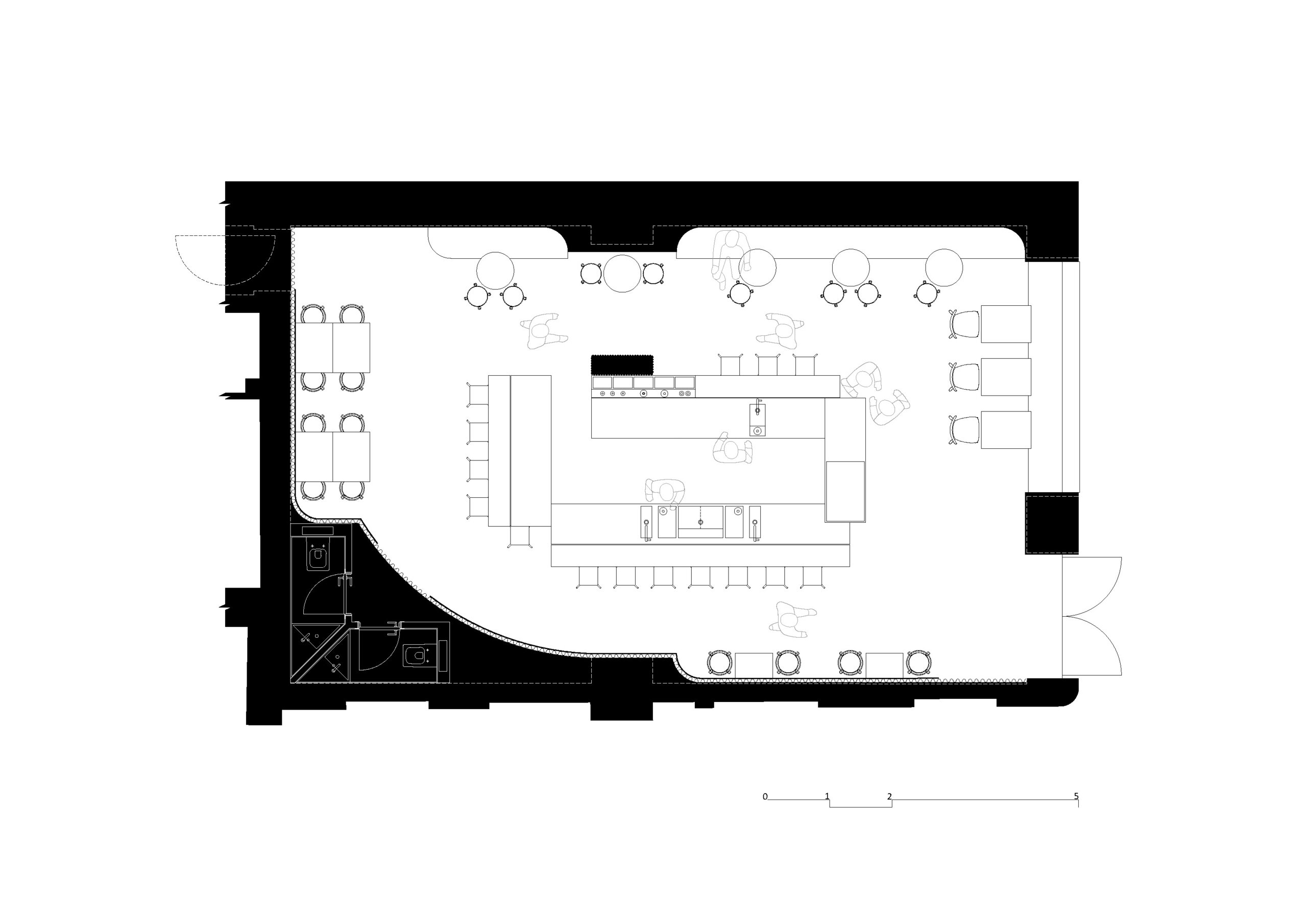
PERL café/bar
A fost această ediție ALTFEL? Un Jurnal bramburit…
Marele Premiu al Bienalei Naționale de Arhitectură Arh. Șerban ȚIGĂNAȘ
Opera Omnia: prof. dr. arh. Nicolae LASCU
Premiul Președintelui Dr. arh. conf. univ. Szabolcs István GUTTMANN
PREMIUL pentru Arhitect în funcție publică: Oksana Florescu, Mirela Didă, Angela Kovács, Radu Radoslav, Dan Nițescu
Premiul „Repere pentru Viitor” British International School of Timișoara Liceul „Ana Șandor” Autori: arh. Vlad Gaivoronschi și arh. Simina Cuc
Premiul Henrietta Delavrancea pentru o prezență feminină de excepție, care s-a remarcat atât prin proiectele elaborate cât și pentru atitudine și moralitate, prin combativitate: Solange d’Herbez de la TOUR Laudatio de Georgeta Gabrea
Premiul Revistei ARHITECTURA Filmul „Shila 2023. Spații sacre”
Cum a fost Bienala de anul acesta?
Locuințe individuale
Casa Dos Galgos
Casă pe Strada Martha Bibescu
Locuințe colective
Radu Teacă
Locuințe colective Câmpia Turzii
Locuire stratificată - Imobil mixt în zona centrală a municipiului Blaj
Imobil de apartamente DEL 12A
Ansamblu Rezidential „CF”
Clădiri pentru educație, sănătate, cult, comunitate și transport
Vlad Arsene
Lăcaș pentru pustnici Paulini
Labirint – Biserică și școală în centru comunitar urban
Extindere corp nou la Colegiul Reformat „Baczkamadarasi Kis Gergely”
Centru medical de excelență. Imagistică, radioterapie și tratament oncologic
Clădiri pentru birouri - administrație, comerț, servicii și industrie
Sediul Central Banca Transilvania
Sediu administrativ Cemacon Recea
@Expo
Clădiri pentru turism și ospitalitate
Vogh Olimp
Sală polivalentă de sport, 2000 de locuri, în municipiul Blaj
The Chapel
Centru Ecoturistic Lacul Sfânta Ana - Tinovul Mohoș
Aparthotel pe malul Oltului
Restaurarea monumentelor de arhitectură
Restaurarea și refuncționalizarea Turnului și Bastionului Măcelarilor
Casa unei colecții
Palatul Băncii Comerțului, Sediul Primăriei Craiova. Restaurare și consolidare
Consolidare, restaurare și punere în valoare - Cazinoul din Constanța
Reabilitarea Casei Colecțiilor
Reabilitarea și reconversia clădirilor
Köllő Miklós
Ștefan Mănciulescu
Consolidarea și modernizarea corpului A (Corp Liceu), Colegiul Național „Liviu Rebreanu”, Bistrița
Restaurare vilă interbelică, str. Joseph Lister, Cotroceni
Sala de sport a Liceului Teoretic Jósika Miklós
Cinema Studio
Arhitectură de interior
Alexandru Negoescu
ARChA
Interior BAC
Sediul United Drive
Amenajare librărie într-o clădire de patrimoniu în Cluj-Napoca
Biroul de vânzări Prima Vista
Luminile Art Nouveau ale Casinoului Constanța
Casa P
PERL café/bar
Birourile ADREM
Aparatus
Milló
Design urban, peisagistică și infrastructură
Piatră, sticlă, apă - Piațeta Independenței Oradea
Revitalizarea Parcului Feroviarilor din municipiul Cluj-Napoca
Râul Someș
Poarta Eroilor. Regenerare urbană sector 4
Amenajare urbană Kogălniceanu
Revitalizarea spațiului pietonal din centrul istoric al municipiului Turda
Arhitectura efemeră
Constantin Brâncuși - Surse românești și perspective universale
Sleeping in the hay
The Missing Link
Flora - The light house
Centrul Expozițional Cazino Constanța
Teatro Lúcido
Revitalizarea rurală
Recuperarea unei locuințe și a unei șuri la țară, în județul Cluj
Highway to hay
Patrimoniul vernacular al Satului Breb. - Reabilitare gospodării tradiționale în cadrul „Ruta satelor cu arhitectură tradițională”
Capela din Unguraș
Tabere de vară, școli de vară de meșteșuguri tradiționale
Școala de conservare a patrimoniului cultural din lemn. Etapa de la Povergina
Baia de arhitectură VI: Revitalizarea malurilor râului Cerna ca arteră verde și culturală a Băilor Herculane
Govora Heritage Lab
IMUAU Summer School. Schönberg 2024-2025
Școala de Vară ARA. Adoptă o Casă la Roșia Montană
Publicații de arhitectură
Bucureștiul modern (1831-1952) Dezvoltare și legislație urbană
Locuind împreună 2. Blocuri recente de ADN BA
Conversii. Carte-laborator
„Regula și modelul. Despre teoria arhitecturii și a urbanismului” de Françoise Choay
Regulamentele de urbanism și calitatea vieții urbane în zonele rezidențiale din România
Fotografia de arhitectură
Priviri haihui
Sacru în forme alte
Minimal Black&White. Arhitectura în alb și negru
Privește cerul
Metropoesis (the 2.0.2.1 re-mix)
Filmul de arhitectură
Fackelmann
Solange d'Herbez de la Tour - arhitectă, femeie, sportivă (2024)
Biserica din Roznov
Glăjărie-apropierea de un meșteșug
Spații sacre 2023
Arhitectura posibilă
Ministerul Înțelepciunii Marine
Conservarea transhumanței - Micro-refugiu pentru păstori
Fragmente în locuire: spre un monument participativ
Parásitos. Microarhitectură integrativă în spațiul urban